Trilocale in vendita

Milano, Via Matteucci - Abruzzi Plinio
€ 735.000
3 locali 3 locali
90 Mq 90 Mq
2 bagni 2 bagni

Trilocale in vendita

Milano, Via Matteucci - Abruzzi Plinio

Descrizione annuncio

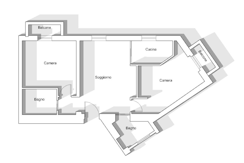
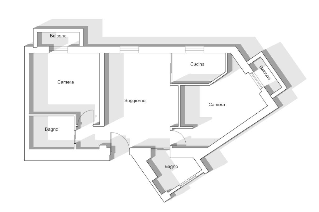
NUOVA REALIZZAZIONE 2025 – 90 MQ CON VISTA PANORAMICA

In esclusiva zona residenziale proponiamo in vendita una prestigiosa nuova realizzazione del 2025, con consegna prevista entro l’inizio del 2026. L’immobile, di circa 90 mq, si trova al terzo piano e gode di una splendida vista panoramica.

La soluzione è arricchita da due balconi, cantina e solaio di pertinenza. Il progetto prevede ambienti moderni e funzionali, con possibilità di personalizzare il capitolato secondo le proprie esigenze abitative e di stile. È inoltre disponibile, su richiesta, la consegna dell’appartamento completamente arredato, con modalità da concordare in ufficio.

L’immobile è inserito in un contesto d’epoca signorile, perfettamente mantenuto nelle parti comuni, e verrà consegnato con tutti i comfort moderni e le certificazioni degli impianti a norma. Le spese condominiali ammontano a circa € 1.300 annui.

Un’opportunità unica per chi desidera un’abitazione moderna e su misura, in un quartiere di pregio, con tutte le comodità e i servizi a portata di mano.

Per ulteriori informazioni e per visionare la planimetria e il capitolato, vi invitiamo a contattarci e fissare un appuntamento presso il nostro ufficio, dove saremo lieti di illustrarvi ogni dettaglio del progetto.

Mostra tutto

Nelle vicinanze

Trasporto pubblico Trasporto pubblico
Loreto
Loreto
430 m
Lima
Lima
450 m
Milano Centrale
Milano Centrale
1,1 Km
stazione di Milano Dateo
stazione di Milano Dateo
1,5 Km
Caiazzo M2
Caiazzo M2
720 m
Ricariche auto elettriche Ricariche auto elettriche
A2A Isola Digitale Piazza Argentina
390 m
Best Western Plus Hotel Galles
400 m
Becharge Milano Palestrina
520 m
BeCharge Milano Piola
520 m
A2A Isola Digitale PoliMi
770 m
Scuole Scuole
Scuole
120 m
ELLCI Italian language school
200 m
Istituto comprensivo Antonio Stoppani
630 m
Scuola elementare Leonardo da Vinci
740 m
Civico Polo Scolastico "Alessandro Manzoni"
750 m
Farmacia Farmacia
Farmacia Internazionale
10 m
Sansovino
200 m
Pedrini Natura
250 m
Farmacia
290 m
Farmacia Eustachi
330 m
Ospedali Ospedali
Istituto Clinico Città Studi
820 m
Istituto Neurologico Carlo Besta
1,2 Km
Istituto Nazionale dei Tumori
1,3 Km
Ospedale Macedonio Melloni
1,6 Km
Centro Medico Milano Tree Of Life S.r.l.
1,8 Km
Supermercati Supermercati
CRAI
190 m
Picard
290 m
Pam
300 m
Il Semprevedere
480 m
Punto Simply
560 m
Negozi Negozi
Carrefour Express
60 m
Anghingò
280 m
Negozi
290 m
Conbipel
320 m
Yamamay
320 m
Bar Bar
Bar
10 m
Blue Moon
60 m
Blackout Lounge Bar
130 m
Bar Abruzzi
160 m
Vino al vino
180 m
Ristoranti Ristoranti
Piccola Hosteria
20 m
Fu Asian Restaurant
30 m
Osteria La Bistecca
50 m
Gustosa
60 m
Piccola Ischia
90 m
Mostra tutto

Caratteristiche

Rif.:
61106669
Piano:
3 di 4 con ascensore (Piano medio)
Balconi:
2
Camere da letto:
2
Arredamento:
Assente
Condizionamento:
Autonomo
Mostra tutto
Prezzo Prezzo
€ 735.000
Rata mutuo Rata mutuo
€ 3.376 / mese
Spese annue Spese annue
€ 1.300
Proponi il tuo prezzoProponi il tuo prezzo

Classe Energetica

D
D
D
D
D
D
D
D
D
EP globale non rinnovabile:
122.55 kW h/m² anno
EP globale rinnovabile:
122.55 kW h/m² anno
EP invernale del fabbricato:
EP estiva del fabbricato:
Anno di costruzione:
1930
Riscaldamento:
Autonomo
Tipo impianto:
A radiatori
Tipo alimentazione:
Metano

Ti interessa visionare l'immobile?

Fissa un appuntamento  Fissa un appuntamento

Richiedi informazioni

* Questi campi sono obbligatori

Calcola il tuo mutuo

Semplice e senza impegno
Anticipo

( % )
Mutuo

( % )

pochi semplici passi

inserisci i tuoi dati
Questionario completato
Grazie per aver richiesto un appuntamento senza impegno con un nostro Consulente del Credito e Assicurativo.

Hai inserito correttamente tutti i dati necessari e a breve riceverai una e-mail con un link da convalidare per inviare i tuoi dati.
Affiliato
La Prima Srl
Viale Gran Sasso, 25 20131 Milano (MI)

Il nostro staff


  • Simone Marulli
    Affiliato

  • Valeria Canfora
    Coordinatrice
Viale Gran Sasso, 25 20131 Milano (MI)
Zona: Abruzzi-Bacone-Piola
Mostra su mappa
Orari: Da Lun- Ven 9.00-13.00 14.30-19.30 Sabato 9.00 - 12.30
Affiliato
La Prima Srl
Viale Gran Sasso, 25 20131 Milano (MI)

2025 Tecnocasa Franchising S.p.A. - P. IVA 08365160152 - Via Monte Bianco 60/A 20089 Rozzano (MI). Ogni agenzia ha un proprio titolare ed è autonoma. Privacy policy | Policy utilizzo | Cookie policy